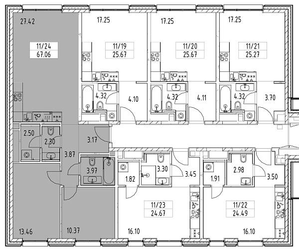
Квартира № 1124
2 очередь, этап 1.1
планировкадом/секциявид на генплане

Корпус Metropoliya_k_a
cекция 11
комнат2
этаж5
срок сдачи
отделкаMR Base
стоимость
33 316 920 ₽
30 318 397 ₽*
Выгода – 2 998 523 ₽ (9%)
Доступны альтернативные планировки квартир. Данные по размерам и конфигурации могут отличаться от представленных на сайте. Ознакомиться со всеми типами планировок можно, обратившись в офис продаж по телефону
+7 (495) 021-17-51
+7 (495) 021-17-51

Рассчитать ипотеку